中古一戸建て 鈴鹿市中江島町
所在地
鈴鹿市中江島町
4,350万円
87.84坪
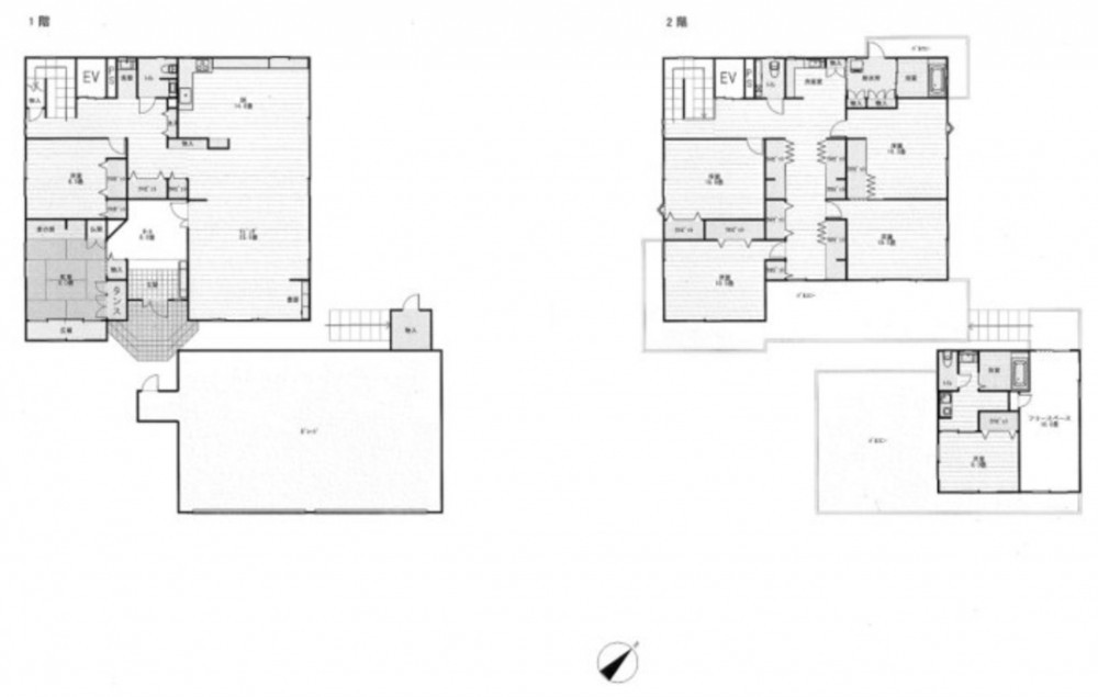
6LDK
物件概要
- 交通
-
近鉄名古屋線 白子駅 まで 徒歩15分
- 接道状況
-
南西側 公道4.0m 間口約19.0m
北西側 公道6.0m 間口約21.9m - 土地面積
- 公簿 499.87㎡ (151.21坪)
- 建物面積
- 290.40㎡ (87.84坪)
- 築年数
-
2001年
(平成13)
1月
築24年 - 建ぺい率
- 60%
- 容積率
- 200%
- 土地権利
- 所有権
- 構造および階数
- 軽量鉄骨造 地上2階建
- 小学校区
- 愛宕 ( 551m )
- 中学校区
- 鼓ヶ浦 ( 2294m )
- 私道負担
- 地目
- 宅地
- 現況
- 空
- 引渡時期
- 即時
- 駐車場
- 有 3台
- 上水道
- 公共
- 下水道
- 公共
- ガス
- プロパン個別
- 都市計画
- 市街化区域
- 用途地域
- 1種中高
- 設備・条件
- 備考
- 取引態様
- 仲介

