新築一戸建て 鈴鹿市長太旭町4丁目
所在地
鈴鹿市長太旭町4丁目
2,590万円
34.31坪
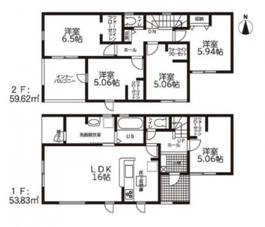
5LDK
物件概要
- 交通
-
近鉄名古屋線 長太ノ浦駅 まで 徒歩6分
- 接道状況
- 南側 公道4.0m
- 土地面積
- 231.41㎡ (70.00坪)
- 建物面積
- 113.45㎡ (34.31坪)
- 築年数
- 2026年 (令和8) 1月 完成予定
- 建ぺい率
- 60%
- 容積率
- 200%
- 土地権利
- 所有権
- 構造および階数
- 木造 地上2階建
- 小学校区
- 長太 ( 350m )
- 中学校区
- 大木 ( 1000m )
- 私道負担
- 地目
- 宅地
- 現況
- 建築中
- 引渡時期
- 予定 2026年1月
- 駐車場
- 上水道
- 公共
- 下水道
- 公共
- ガス
- 都市計画
- 市街化区域
- 用途地域
- 1種住居
- 建築確認番号
- KS125-0420-57141号
- 設備・条件
- システムキッチン、オール電化、シャンプードレッサー、洗浄便座、浴室乾燥機、追い焚き、複層ガラス、モニタ付インターホン、床下収納、トイレ2箇所
- 備考
- 取引態様
- 仲介

