中古一戸建て 鈴鹿市野町中2丁目
所在地
鈴鹿市野町中2丁目
8,500万円
147.11坪
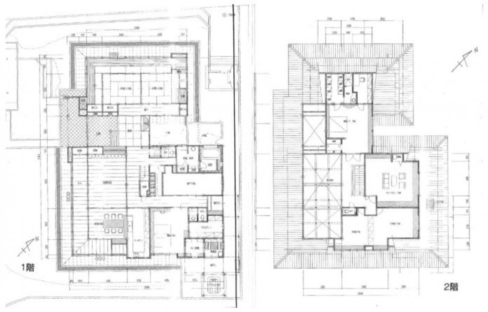
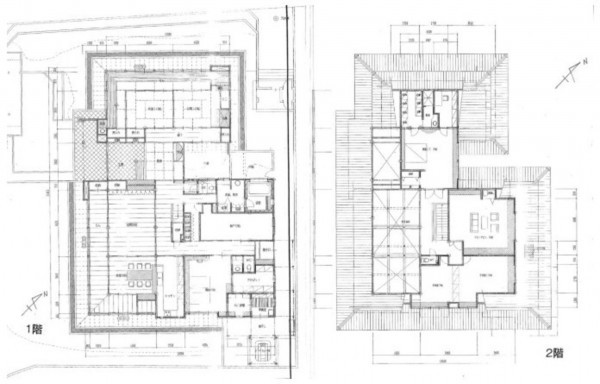
5SLDK
物件概要
- 交通
-
伊勢鉄道 玉垣駅 まで 徒歩11分
- 接道状況
-
北西側 公道9.4m 間口約50.8m
南西側 公道8.0m 間口約3.5m - 土地面積
- 公簿 1246.76㎡ (377.14坪)
- 建物面積
- 486.33㎡ (147.11坪)
- 築年数
-
2002年
(平成14)
7月
築23年 - 建ぺい率
- 60%
- 容積率
- 100%
- 土地権利
- 所有権
- 構造および階数
- 木造 地上2階建
- 小学校区
- 稲生 ( 1738m )
- 中学校区
- 白子 ( 2069m )
- 私道負担
- 地目
- 宅地
- 現況
- 空
- 引渡時期
- 即時
- 駐車場
- 有
- 上水道
- 公共
- 下水道
- 公共
- ガス
- プロパン個別
- 都市計画
- 市街化区域
- 用途地域
- 2種低層
- 設備・条件
- 備考
- 取引態様
- 仲介

