新築一戸建て 鈴鹿市若松北3丁目
所在地
鈴鹿市若松北3丁目
2,580万円
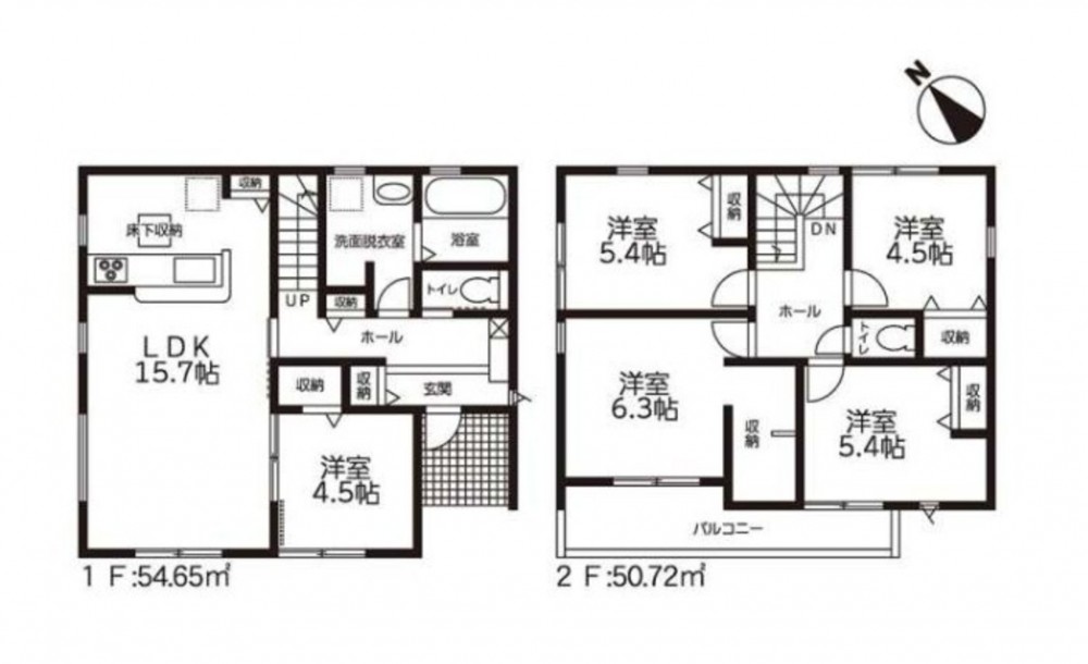
31.87坪
5LDK
物件概要
- 交通
-
近鉄名古屋線 伊勢若松駅 まで 徒歩15分
- 接道状況
- 南側 公道5.4m
- 土地面積
- 159.61㎡ (48.28坪)
- 建物面積
- 105.37㎡ (31.87坪)
- 築年数
- 2026年 (令和8) 5月 完成予定
- 建ぺい率
- 60%
- 容積率
- 100%
- 土地権利
- 所有権
- 構造および階数
- 木造 地上2階建
- 小学校区
- 若松 ( 1900m )
- 中学校区
- 大木 ( 1600m )
- 私道負担
- 地目
- 宅地
- 現況
- 引渡時期
- 予定 2026年5月
- 駐車場
- 上水道
- 公共
- 下水道
- 公共
- ガス
- 都市計画
- 市街化区域
- 用途地域
- 1種低層
- 建築確認番号
- 第KS125-0420-60914号
- 設備・条件
- オール電化、システムキッチン、シャンプードレッサー、浴室乾燥機、モニタ付インターホン、洗浄便座、複層ガラス、追い焚き、床下収納、トイレ2箇所
- 備考
- 取引態様
- 仲介

